Một ngôi nhà 3 tầng tối giản đầy tinh tế là điều mà những người hiện đại rất thích. Đây cũng là một trong những ngôi nhà 3 tầng tối giản cực kì xuất sắc Gia Phú thiết kế.
Kiến trúc hiện đại của ngôi nhà được thể hiện ở những hình khối được sắp xếp mới lạ và đầy tinh tế. Bên cạnh đó những vật liệu được sử dụng cũng góp phần không nhỏ cho việc giúp ngôi nhà toả sáng hơn.
|
Phối cảnh mặt tiền nhà phố cực đẹp |
Tên công trình: Duy’house
Địa điểm: Văn Lâm, Hưng Yên
Diện tích khu đất: 75 m2(5x15m)
Diện tích xây dựng: 65 m2
Phong cách: Hiện đại
Năm: 2021
Công năng:
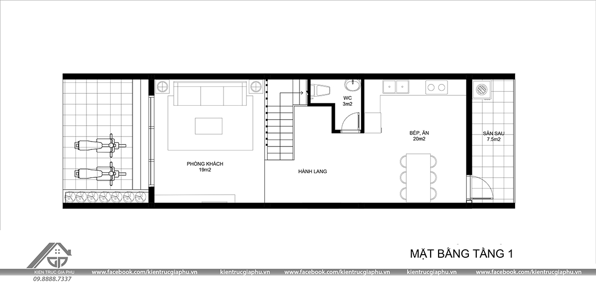
+ Tầng 1: Sân trước để xe máy, phòng khách, phòng bếp +ăn, 01 wc, sân.
+ Tầng 2: Ban công, 02 phòng ngủ, wc.
+ Tầng 3: Sân thượng, phòng thờ, 01 phòng ngủ, wc.
